Jakie bloczki na fundament – wybierz najlepsze rozwiązania budowlane
Wybierz odpowiednie bloczki na fundament, aby zapewnić trwałość i stabilność budowli. Sprawdź, jakie bloczki betonowe będą najlepsze dla Twojej inwestycji.
Jakie bloczki na fundament – wybierz najlepsze rozwiązania budowlane
Wybierz odpowiednie bloczki na fundament, aby zapewnić trwałość i stabilność budowli. Sprawdź, jakie bloczki betonowe będą najlepsze dla Twojej inwestycji.
Jak wytyczyć fundamenty: krok po kroku, unikaj najczęstszych błędów
Zobacz, jak wytyczyć fundamenty krok po kroku. Unikaj najczęstszych błędów, aby zapewnić stabilność swojej konstrukcji i oszczędzić czas oraz pieniądze.
Jak głęboki fundament pod ogrodzenie? Sprawdź, aby uniknąć błędów
Zastanawiasz się, jak głęboki fundament pod ogrodzenie? Sprawdź nasze porady dotyczące głębokości fundamentów dla różnych typów ogrodzeń i uniknij błędów.
Zagrożenia związane z odkrytymi fundamentami na zimę - co musisz wiedzieć
Nie zostawiaj odkrytych fundamentów na zimę! Dowiedz się, jakie zagrożenia mogą wystąpić i jak skutecznie je zabezpieczyć przed mrozem.
Jak głęboki fundament pod garaż zapewni trwałość i stabilność?
Zastanawiasz się, jaki głęboki fundament pod garaż zapewni trwałość i stabilność? Sprawdź, jak dobrać odpowiednią głębokość dla swojej konstrukcji.
Jaki beton na fundament B20 czy B25? Wybierz najlepszy dla trwałości
Wybierz odpowiedni beton na fundament B20 czy B25, aby zapewnić trwałość swojej budowli. Sprawdź różnice i zastosowanie obu typów betonu.
Z czego zrobić fundament pod szklarnię – uniknij kosztownych błędów
Z czego zrobić fundament pod szklarnię? Poznaj najlepsze materiały, porównaj koszty i uniknij kosztownych błędów przy budowie swojej szklarni.
Jakiej grubości styrodur na fundamenty? Klucz do solidnej izolacji
Wybór odpowiedniej grubości styroduru na fundamenty jest kluczowy dla efektywnej izolacji. Sprawdź, jakie grubości są najlepsze dla Twojego projektu.
Co to jest fundament? Kluczowe informacje o jego roli w budownictwie
Poznaj, co to jest fundament i jaką pełni rolę w budownictwie. Dowiedz się, jak fundamenty wpływają na stabilność i trwałość budynków.
Jakie pręty na zbrojenie fundamentów - wybierz najlepsze rozwiązania
Wybierz najlepsze pręty na zbrojenie fundamentów! Sprawdź, jakie rodzaje prętów są najskuteczniejsze i jak wpłyną na trwałość Twojej budowy.
Ile muszą odstać fundamenty, aby uniknąć problemów z budową?
Ile muszą odstać fundamenty? Dowiedz się, jak długo czekać, aby uniknąć problemów z budową i zapewnić stabilność swojej konstrukcji.
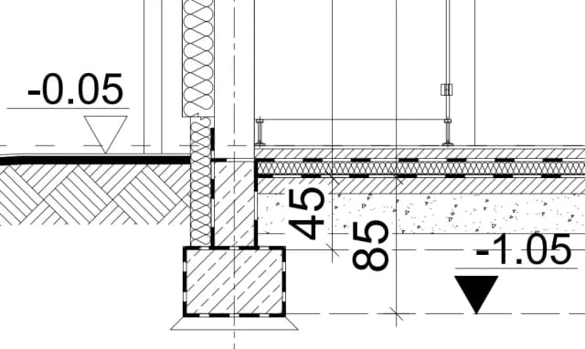
Jak czytać projekt fundamentów i uniknąć kosztownych błędów
Naucz się, jak czytać projekt fundamentów, aby uniknąć kosztownych błędów. Kluczowe informacje o wymiarach, poziomach i analizie rysunków technicznych.
Jaki fundament pod dom? Kluczowe czynniki, które musisz znać
Zastanawiasz się, jaki fundament pod dom wybrać? Sprawdź kluczowe czynniki, które wpłyną na stabilność i trwałość Twojej budowli.
Jakie fundamenty pod dom parterowy wybrać, aby uniknąć problemów?
Wybór odpowiednich fundamentów pod dom parterowy jest kluczowy. Sprawdź, jakie fundamenty pod dom parterowy zapewnią stabilność i unikną problemów.
Czym zasypać fundamenty z zewnątrz, aby uniknąć problemów z wilgocią?
Zastanawiasz się, czym zasypać fundamenty z zewnątrz? Sprawdź najlepsze materiały, które zapewnią izolację termiczną i ochronę przed wilgocią.
Ile styropianu na fundament? Kluczowe grubości dla skutecznej izolacji
Ile styropianu na fundament? Sprawdź, jak dobrać odpowiednią grubość styropianu dla efektywnej izolacji i oszczędności na ogrzewaniu.
Jakie przepusty w fundamencie? Kluczowe informacje i porady ekspertów
Poznaj różne rodzaje przepustów w fundamencie, ich zastosowanie oraz kluczowe informacje, które pomogą w efektywnym zarządzaniu mediami pod budynkiem.
Fundamenty czy płyta: Które rozwiązanie zaoszczędzi czas i pieniądze?
Zastanawiasz się, które rozwiązanie lepiej wybrać: fundamenty czy płyta? Sprawdź, jak zaoszczędzić czas i pieniądze na budowie swojego domu.
Jaki beton na fundamenty? Kluczowe informacje, które musisz znać
Wybór odpowiedniego betonu na fundamenty jest kluczowy. Sprawdź, jaki beton na fundamenty wybrać, aby zapewnić trwałość i stabilność budowli.
Jak wzmocnić fundamenty i uniknąć kosztownych napraw budynku
Dowiedz się, jak wzmocnić fundamenty, aby zapewnić stabilność budynku i uniknąć kosztownych napraw. Sprawdź skuteczne metody wzmocnienia fundamentów.
Czym obsypać fundamenty, aby uniknąć problemów ze stabilnością?
Dowiedz się, czym obsypać fundamenty, aby zapewnić ich stabilność i uniknąć problemów z osiadaniem. Poznaj najlepsze materiały i techniki!
Jakie zbrojenie na fundament? Klucz do trwałej konstrukcji budynku
Zastanawiasz się, jakie zbrojenie na fundament wybrać? Sprawdź, jak zapewnić trwałość i stabilność swojej konstrukcji budynku.
Jak wytyczyć fundament pod garaż bez błędów i oszczędzić czas
Dowiedz się, jak wytyczyć fundament pod garaż, unikając błędów i oszczędzając czas. Praktyczne wskazówki i techniki dla skutecznej budowy.